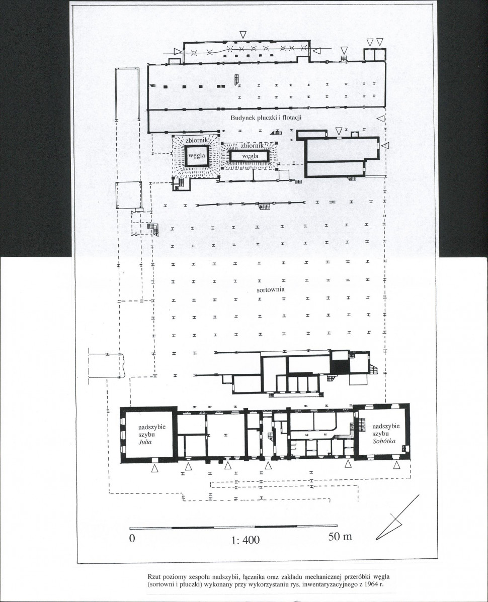
Zabytek.pl budynek płuczki i flotacji 1 Go to monument's view Karta biała download Download Download this page Download document Add to favorites Add to favourites print Print share in social media Share Shareshare on linkedinshare on facebookshare on twitter DocumentNotes close view Default View abc Warstwa OCR Page view 21 Page view Zoom In Zoom In previous object next object Karta biała Nr: 9267 Document date: 2002-10-01 Author: Rybka-Ceglecka Iwona Register: Ewidencja zabytków nieruchomych Document Id: PL.1.9.ZIPOZ.NID_N_02_EN.224538 Add to collection Licence Add note Add note Add note Add note Add note Add note Add note Add note Add note Add note Add note Add note Add note Add note Add note Add note Add note Add note Add note Add note Add note Please, login to add notes. Login Not registered yet? Register now! Karta biała 21 Podgląd stron21 1 2 3 4 5 6 7 8 9 10 11 12 13 14 15 16 17 18 19 20 21 1 2 3 4 5 6 7 8 9 10 11 12 13 14 15 16 17 18 19 20 21